DETAIL 中古戸建 豊島区池袋本町1丁目/中古一戸建て(収益)/1億900万― 旅館業許可済 × 池袋エリア × 家具付3LDK ―
中古戸建
豊島区池袋本町1丁目/中古一戸建て(収益)/1億900万― 旅館業許可済 × 池袋エリア × 家具付3LDK ―
- 所在地
- 東京都豊島区池袋本町1丁目
- 価格
- 1億900万円
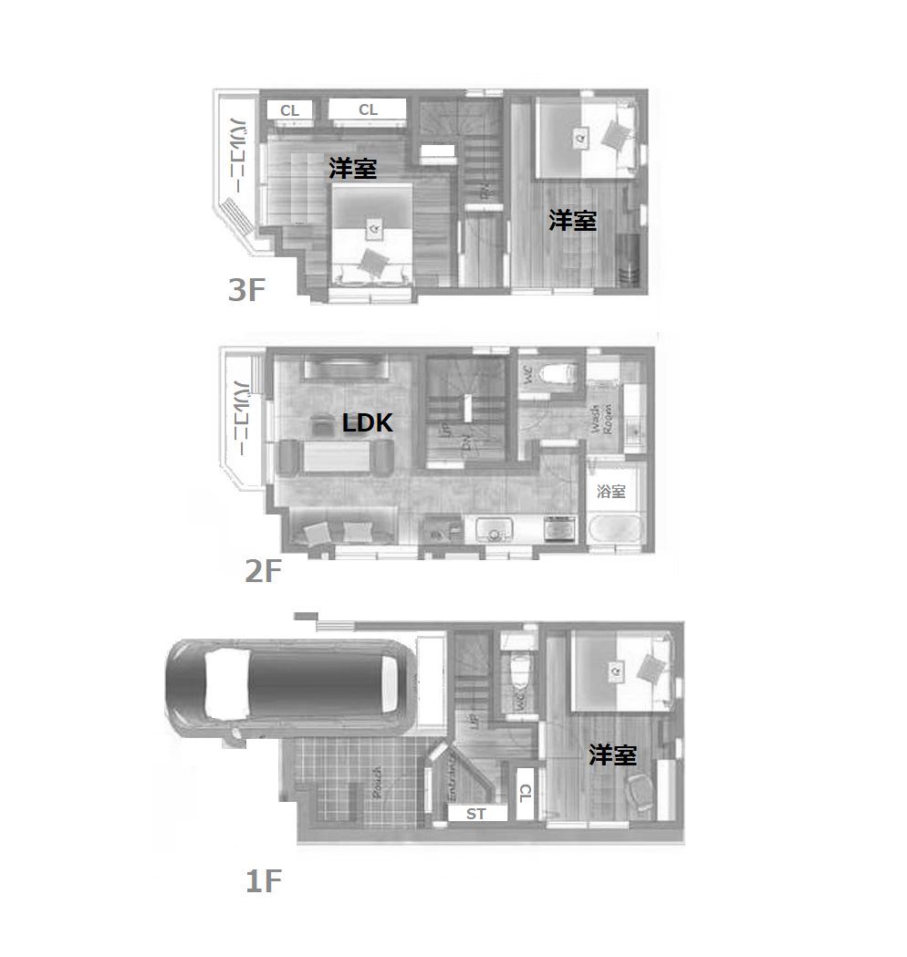
- 間取り
- 3LDK
- 土地面積
- 48.73m²
- 建物面積
- 75.76m²
- 交通
- JR山手線 池袋駅 徒歩12分
西武池袋線 池袋駅 徒歩12分
おすすめポイント!
・東京を代表するターミナル駅徒歩圏内の好立地!
・グループや家族旅行客に人気!「一棟貸し」の収益物件!
・館業許可済の安心感!面倒な手続きをせず即運営可能です♪
<年間収益予想>11,955,600円
<予想利回り>10.97%
□現地のご見学、資料請求受付中です!
物件のことはもちろん、地域の事やご購入までの流れなど、
お気軽にお問い合わせくださいませ♪
Message
- 佐藤 幸央
- Yukio Sato

OVERVIEW物件概要
|
| 所在地 | 東京都豊島区池袋本町1丁目 |
|---|---|
| 交通 | JR山手線 池袋駅 徒歩12分 西武池袋線 池袋駅 徒歩12分 |
| 築年月 | 2002/01 | 新築/中古 | 中古 |
|---|---|---|---|
| 面積 | 75.76m² | 建物構造 | 木造 |
| 間取り | 3LDK | 建物面積 | 75.76m² |
| 建物階数 | 地上3階 | 部屋階数 | |
| 駐車場 | 取引態様 | 仲介 | |
| 引渡/入居時期 | 現況 | ||
| 地目 | 宅地 | 用途地域 | 第一種住居 |
| 土地面積 | 48.73m² | 向き | |
| 建ぺい率 | 60% | 容積率 | 164% |
| 土地権利 | 所有権 | 接道状況 | 一方 |
| 接道方向1 | 西 | 接道間口1 | |
| 接道種別1 | 接道幅員1 | 4.1m | |
| 状態 | 売出中 | ||
| 設備・条件 | 整形地 始発駅 2沿線以上利用可 トイレ2ヶ所 TVモニター付インターホン スーパー 徒歩10分以内 | ||
MAP周辺地図
※物件掲載内容と現況に相違がある場合は現況を優先と致します。










