DETAIL 売地 目黒区中町2丁目/売地/1億1520万― 2駅利用可 × 多用途に利用可 × 自由設計 ―
売地
目黒区中町2丁目/売地/1億1520万― 2駅利用可 × 多用途に利用可 × 自由設計 ―
- 所在地
- 東京都目黒区中町2丁目
- 価格
- 1億1,520万円
- 交通
- 東急東横線 祐天寺駅 徒歩7分
東急東横線 学芸大学駅 徒歩13分
おすすめポイント!
・忙しい朝や遅い帰宅時にも嬉しい駅徒歩7分!
通勤・通学にも便利な好立地♪
・スーパーや公園などバランスの整った住環境が日々をサポート!
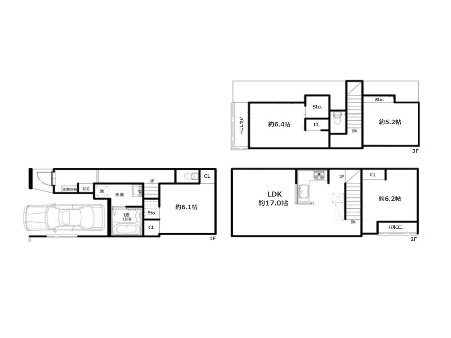
□想いを形へプロジェクト
建築条件はございませんので、お好みのハウスメーカーにて建築いただけます。
また間取りの作成や建築会社のご紹介など無料にて承っております!
ご家族のスタイルに合った住まいをご提案します。
□現地のご見学、資料請求受付中!
物件のことはもちろん、地域の事やご購入までの流れなど、
お気軽にお問い合わせくださいませ♪
Message
- 大図 晟也
- Seiya Ohzu

ENVIRONMENT周辺環境
- ファミリーマート目黒中町店:徒歩4分
- sanwa祐天寺店:徒歩2分
- GAKUDAI KOUKASHITA:徒歩12分
- 目黒区立守屋図書館:徒歩5分
OVERVIEW物件概要
|
所在地 | 東京都目黒区中町2丁目 |
---|---|
交通 | 東急東横線 祐天寺駅 徒歩7分 東急東横線 学芸大学駅 徒歩13分 |
駐車場 | 取引態様 | 仲介 | |
---|---|---|---|
引渡/入居時期 | 相談 | 現況 | 更地 |
地目 | 宅地 | 用途地域 | 第一種住居 |
建ぺい率 | 60% | 容積率 | 200% |
土地権利 | 所有権 | 接道状況 | 一方 |
接道方向1 | 西 | 接道間口1 | |
接道種別1 | 接道幅員1 | 10.8m | |
状態 | 売出中 | ||
設備・条件 | 都市ガス 公営水道 スーパー 徒歩10分以内 更地渡し 建築条件なし 建築プラン例有り バリアフリー デザイナーズ 建築条件無 |
MAP周辺地図
※物件掲載内容と現況に相違がある場合は現況を優先と致します。