DETAIL 中古戸建 目黒区目黒1丁目/中古一戸建て/1億3500万ー 駅徒歩5分 × 2019年築 × 車庫付き3LDK ー
中古戸建
目黒区目黒1丁目/中古一戸建て/1億3500万ー 駅徒歩5分 × 2019年築 × 車庫付き3LDK ー
- 所在地
- 東京都目黒区目黒1丁目
- 価格
- 1億3,500万円
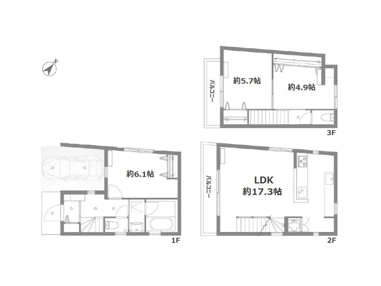
- 間取り
- 3LDK
- 土地面積
- 51.37m²
- 建物面積
- 85.93m²
- 交通
- 都営三田線 目黒駅 徒歩5分
JR山手線 目黒駅 徒歩5分
おすすめポイント!
・アクセス抜群の「目黒駅」までなんと徒歩5分の距離♪
・毎年大盛況の桜の各所「目黒川」まで徒歩3分!
・2019年築の築浅物件♪
・LDK17.3帖のゆとりある3LDKの間取り
・リノベーション済み戸建♪
・キッチンには収納に便利なカップボード、吊り戸棚付き♪
・コンビニやスーパー、公園など徒歩圏内♪
□現地のご見学、資料請求受付中!
物件のことはもちろん、地域の事やご購入までの流れなど、
お気軽にお問い合わせくださいませ♪
Message
- 大図 晟也
- Seiya Ohzu

ENVIRONMENT周辺環境

- ファミリーマート目黒一丁目店:徒歩2分

- ローソン目黒一丁目店:徒歩1分

- 東急ストア目黒店:徒歩5分

- 目黒区立目黒区民センター図書館:徒歩7分
OVERVIEW物件概要
|
| 所在地 | 東京都目黒区目黒1丁目 |
|---|---|
| 交通 | 都営三田線 目黒駅 徒歩5分 JR山手線 目黒駅 徒歩5分 |
| 築年月 | 2019/03 | 新築/中古 | 中古 |
|---|---|---|---|
| 面積 | 85.93m² | 建物構造 | 木造 |
| 間取り | 3LDK | 建物面積 | 85.93m² |
| 建物階数 | 地上3階 | 部屋階数 | |
| 駐車場 | 取引態様 | 仲介 | |
| 引渡/入居時期 | 相談 | 現況 | 空家 |
| 地目 | 宅地 | 用途地域 | 第一種中高層住居専用 |
| 土地面積 | 51.37m² | 向き | |
| 建ぺい率 | 60% | 容積率 | 200% |
| 土地権利 | 所有権 | 接道状況 | 一方 |
| 接道方向1 | 南西 | 接道間口1 | 3.88m |
| 接道種別1 | 接道幅員1 | 6.2m | |
| 状態 | |||
| 設備・条件 | 整形地 陽当り良好 始発駅 2沿線以上利用可 リノベーション LDK15帖以上 システムキッチン カウンターキッチン 浴室に窓 全居室収納 TVモニター付インターホン バリアフリー 都市ガス 公営水道 スーパー 徒歩10分以内 小学校 徒歩10分以内 バリアフリー デザイナーズ | ||
MAP周辺地図
Notice: Undefined variable: fudou_img_max in /home/xb528977/arrow-link.co.jp/public_html/site/wp-content/themes/arrow-link/single-fudo.php on line 910
※物件掲載内容と現況に相違がある場合は現況を優先と致します。










































